продам квартира

Київська область Києво-Святошинський район,  село Ходосівка
Показати на карті
50'000 USD
648 за м2
Код: 819723121
Поверх: 9 із 10
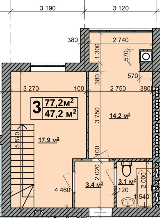
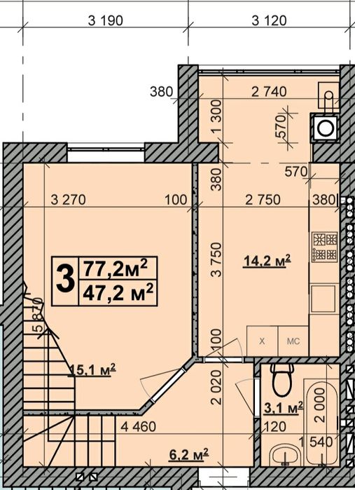
Площа: 77.1 м2
Кухня: 14.2 м2
Ванні кімнати: 2
оновлено: 5 листопада
Продаж 3х кімнатної 2х рівневої квартири. с.Ходосівка, Київська обл..; Продається 3-кімнатна - 2-рівнева квартира. Метраж 77,1 м. Розташована на 9 та 10 поверхах, 10-поверхового будинку "Lion". Вул. Леоніда Каденюка 18, ЖК Нова Конча-Заспа с.Ходосівка, Київська обл. Обухівський район. Квартира видова, світла і простора, вікна виходять на Аутлет-містечко "Мануфактура". Три кімнати, без отвору на стелі та сходинок між поверхами, два окремих входи (можливість здавати або жити 2 сім'ям). Кімната на 9 поверсі (суміжний санвузол, кухня-лічильник газу та газовий котел), кімнати на 10 поверсі (фріспейс). Будинок зданий в експлуатацію у жовтні 2021 року. У парадному євроремонт, ведеться відеоспостереження, є сучасний ліфт з відеоспостереженням. До дверей квартири підведено електрику в кімнату заведено газ встановлено газовий лічильник, встановлено 2-контурний газовий котел, підведено високошвидкісний інтернет. Стан квартири від забудовника: червона цегла, металопластикові вікна, автономне опалення, машинна штукатурка та лазерна стяжка підлоги. Квартира без боргів. Документи в порядку. Тихий, затишний ЖК розташований в екологічно чистому місці, закрита, доглянута територія з камерами відеоспостереження та пунктом охорони зі шлагбаумом, місця для паркування на території достатньо, цілодобовий контроль. Зручно розвинена інфраструктура. Поблизу будинку є все необхідне - Аутлет-містечко "Мануфактура", ТРЦ Мегамаркет, кінотеатр, фітнес клуб, басейн, боулінг, дитячий розважальний центр, дитячі та спортивні майданчики, ресторани, кафе, школи та садки, приватні та державні. Ліс і озера в пішій доступності. Добре розвинена транспортна розв'язка. Маршрутні таксі до Києва кожні 10 хвилин. Новообухівська траса з прекрасним новим покриттям. До Києва 5км. До м."Видубичі" 10км. До Печерська 20 хвилин машиною.