продам квартира
                        
                        
                        
                        
                            
                                
                                
                                    | Код: | 807446213 | 
                                
                                
                                    | Поверх: | 5 із 10 | 
                                
                                
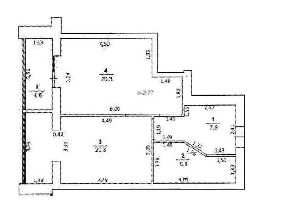
                                    | Площа: | 60 м2 | 
                                
                                
                                    | Кухня: | 20.3 м2 | 
                                
                                
                                    | оновлено: | 30 жовтня | 
                                
                                
                            
                        Продам простору. 1 кімн. квартиру 60 кв.м. за вигідною ціною; Власник. Будинок здано. Стан: після забудовника
Однокімнатна квартира в цегляному будинку загальною площею 60 кв. м та житловою площею 20,3 кв. м.
Розташована на 5 поверсі 10-поверхового будинку. Не кутова
Висота стель: 2,80 м.
Гарний вид з вікон.
Підключені всі комунікації (газ, вода, світло.) 
Індивідуальне опалення в квартирі, що забезпечує комфортне проживання та економію витрат.
Засклений балкон, броньовані двері. Ліфт OTIS.
Поруч зупинка транспорту. Неподалік є школа, спорткомплекс, магазини, кафе.
Адреса: вул. Віктора Андрієвського (Геннадія Біліченка), 41-А.
Телефонуйте — відповім на усі питання та домовимося про перегляд