продам будинок
Запорізька область , місто Запоріжжя
| Код: |
615167668
|
| К-ть кімнат: |
5
|
| Поверх: |
2
|
| Площа: |
170 м2
|
| Земельна ділянка: |
8 сот
|
| оновлено: |
5 листопада
|
Дніпровський; Продам дом, СРОЧНО, г. Запорожье, пос. Солнечный, правый берег; Продам дом, г. Запорожье, пос. Солнечный-2, правый берег (переулок Лебедя)
Расположение: Запорожье, правый берег, пос. Солнечный, (5-10 минут до микр. Бородинский. Кольцо Каховская - 20 минут ходьбы)
Тип дома - дуплекс (два дома по одному проекту под одной крышей)
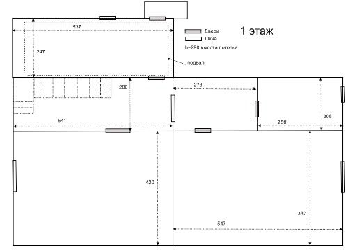
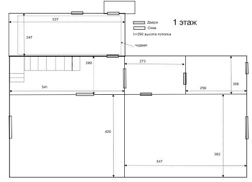
Общая площадь: 170 м2, 5 комнат, кухня-22 м2
Этажей: 2
Участок: 8 соток
Газ, вода, электричество
Первый этаж: гостиная, кухня, санузел.
Второй этаж: 4 комнаты.
Материал стен:
стеновые блоки - инкерманский камень (природный известняк) 100*120* 40 см
Перекрытия: плиты перекрытия бетонные заводские
Цена определена оценщиком согласно состояния дома и документов на момент продажи
---
Координаты:
Запорожье, Запорожская область, 69061
47.892********046829