продам квартира
| Код: |
905376858
|
| Поверх: |
13 із 19
|
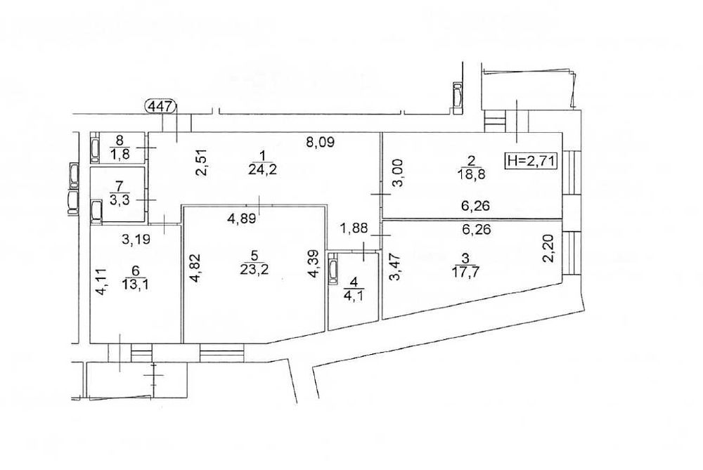
| Площа: |
112.2 м2
|
| Кухня: |
13.1 м2
|
| Ванні кімнати: |
3
|
| оновлено: |
08:28
|
Шевченківський; Квартира Герцен парк; Пропонується до продажу простора 3-кімнатна квартира бізнес-рівня у ЖК Герцен Парк (вул. Герцена, 35, Шевченківський район). Пропонуємо переглянути 3Д тур по квартирі - пишіть в особисті.
Стан відмінний: сучасний ремонт із використанням високоякісних матеріалів та техніки.
Особливості квартири:
продумане планування кухня відділена від вітальні тихими розсувними дверима, спальня має свій великий санвузол, дитяча кімната додаткова утеплена з заміною вікон;
вітальня захищена з усіх сторін що робить її найбезпечнішим місцем. Це дійсно високий рівень безпеки та комфорту під час повітряних тривог;
є безпечна кімната із кутовим видом;
у вітальні все готово під домашній кінотеатр;
2 балкони, 3 санвузли, 2 гардеробні кімнати, окрема гладильна;
повністю мебльована, меблі в чудовому стані та мають одну з найкращих фурнітур Blum
тепла підлога Rehau, індивідуальним опалення котлом Bosch, кондиціонери C&H;
Квартира економна за рахунок власного опалення, середні витрати за міс по електриці 1000 грн (це з опаленням)
усе оздоблення виконано з якісних матеріалів, встановлена техніка Bosch та Electrolux;
паркетна дошка
Якісна сантехніка та електрика:
сантехніка Grohe
сенсорні вимкачи від Livolo
обладнанна індивідуальним відонаглядом зі сторони вхідної двері;
приємний вид на парк із дитячої кімнати та спальні;
підземний паркінг, можливість придбати 2 паркомісця.
Документам більше 3 років
Прописаних у квартирі немає
Інфраструктура:
ЖК Герцен Парк це комфортний сучасний житловий комплекс із закритою територією, охороною, відеоспостереженням та доглянутими дворами.
На території є дитячі майданчики, спортивні зони, місця для відпочинку.
Поруч парк, магазини, школи, дитячі садки, кафе, фітнес-клуби.
Метро Дорогожичі 10 хвилин пішки.
Телефонувати на WhatsApp, Viber