продам квартира

Львівська область Пустомитівський район,  село Сокільники
Показати на карті
110'000 USD
1571 за м2
Код: 902894657
Поверх: 5 із 6
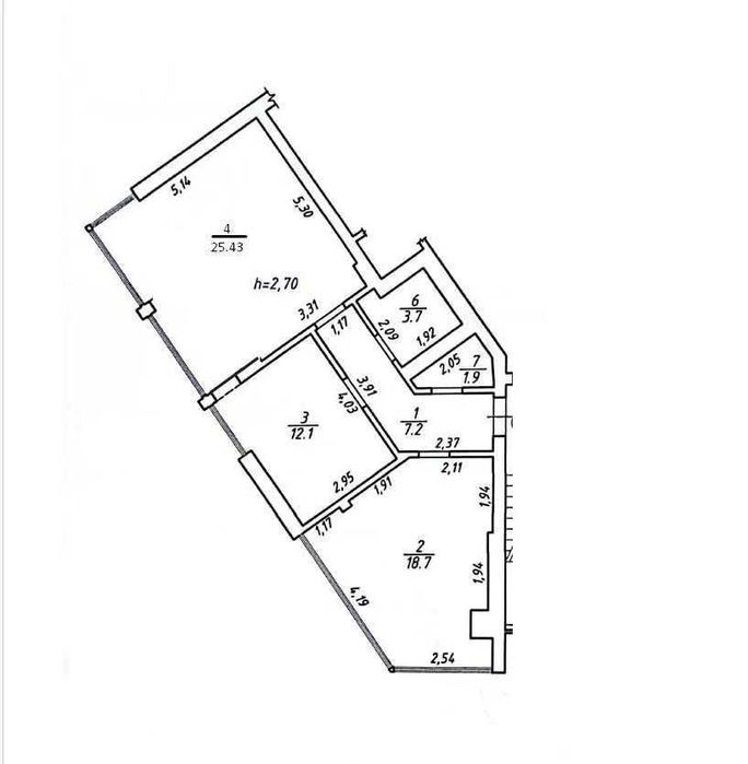
Площа: 70 м2
Кухня: 20 м2
Ванні кімнати: 2
оновлено: 1 листопада
Продаж квартири, СОКИЛЬНИКИ; Терміновий!! Продаж!! Сокільники Продаж квартири біля Львова Григорія Сковороди 2 кім 70 кв м. 5/6 Деталі по телефону, є відео огляд. Торг. 09*********95